Navodila za dvojno zloženo tovorno dvigalo
To tovorno dvigalo ima dvojno prepognjeno zasnovo s skupno 4 ploščami, ki se odpirajo iz sredine. Njegova največja nosilnost je 5000 kg, hitrost dviganja pa lahko doseže 2,0 m/s. Omogoča, da tovorno dvigalo enostavno zadovolji potrebe ravnanja s težkimi predmeti v različnih scenarijih.

Ko potiskate težak predmet in stojite v prostornem in svetlem ca. S samo nežnim pritiskom se dvojno zloženo tovorno dvigalo enostavno odpre in vas s težkim predmetom dvigne na želeno višino. Njegova zasnova deljenih vrat omogoča bolj gladek vstop in izstop blaga, širina vrat pa lahko doseže 2400 mm, s čimer se izognete gneči in neprijetnostim tradicionalnih tovornih dvigal. Hkrati lahko njegov inteligentni nadzorni sistem natančno nadzoruje višino in hitrost dviga, kar zagotavlja varno in brezskrbno rokovanje vsakič.
Omeniti velja, da ima dvojno zloženo tovorno dvigalo tudi odlično energetsko varčno zmogljivost. Po izračunih lahko v primerjavi s tradicionalnimi tovornimi dvigali prihrani do 30 % porabe energije in prispeva k zelenemu razvoju podjetij.
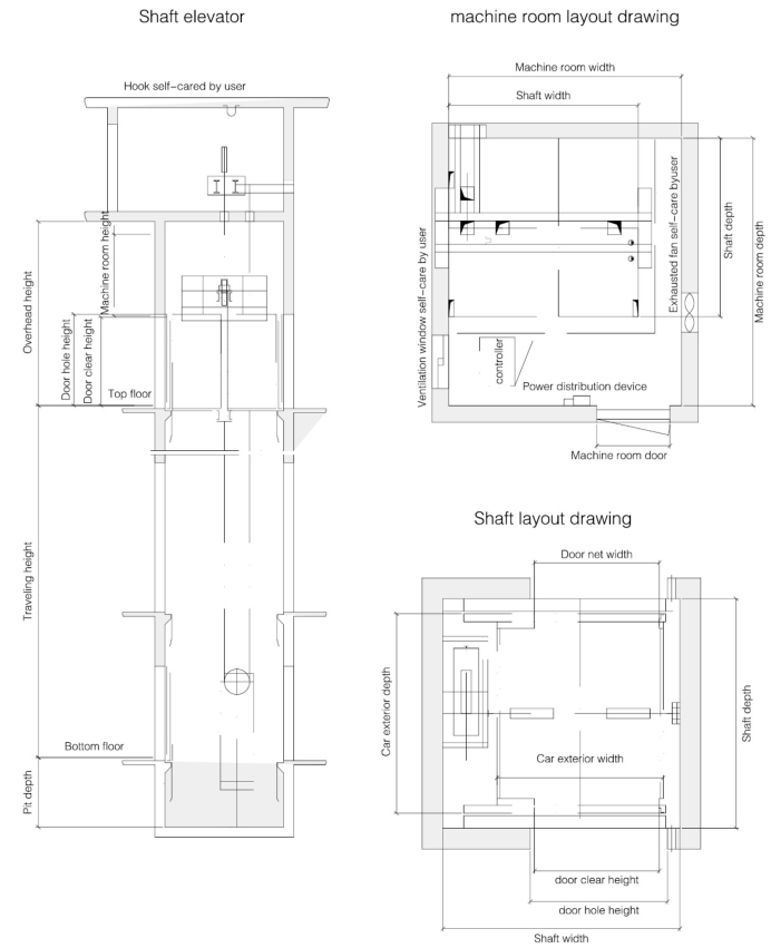
Risba konstrukcije in specifikacije


Standardna funkcija


Kakšne so značilnosti dvojno zloženega tovornega dvigala FUJI?
● Vlečni motor:Je "srce" dvojno zloženega tovornega dvigala. Motor, ki zagotavlja moč za gibanje avtomobila. Z uporabo vrhunske tehnologije sinhronskega motorja s trajnimi magneti ima moč do največ 17 W. Hkrati je varčen z energijo in prijazen do okolja. Novi motor lahko zmanjša porabo energije za več kot 30 %.
● Avto:»Premikajoči se prostor« dvojno zloženega tovornega dvigala. Izdelan je iz zanesljivega nerjavečega jekla 304. Ko se prižge luč, je notranjost dovolj prostorna in svetla za blago. Nekateri mehki materiali so opremljeni tudi okoli kabine dvigala, kot sta guma in les. Lahko zaščitijo blago in se med prevozom ne poškodujejo. Največja širina vratne odprtine je 2400 mm. Omogoča nemoten vstop velikih količin blaga v kabino dvigala.

● Nadzorni sistem:»Pametni možgani« dvojno zloženih tovornih dvigal. Uporaba mikroprocesorske tehnologije za doseganje natančnega nadzora talnega parkiranja. Ne glede na to, ali gre za izbiro določenih nadstropij ali prilagoditev povečanja ali zmanjšanja hitrosti, je to mogoče dokončati s preprostimi operacijami. Nadzorni sistem ima tudi funkcijo samopreverjanja napak, ki lahko skenira različne funkcije v realnem času. Ko zazna napako, jo je mogoče hitro locirati in posredovati serviserju.
● Varnostna komponenta:"Čuvar" tovornega dvigala. Vključno z zaščito pred preobremenitvijo, zaviranjem v sili, omejevalnikom hitrosti itd., ki vedno skrbi za varnost tovornega dvigala. In vse varnostne komponente so opravile certifikat EN81. Po statističnih podatkih lahko te varnostne komponente zagotovijo 99,9 % stabilno delovanje tovornega dvigala v ekstremnih situacijah. Ko je blago pretežko, se takoj aktivira zaščita pred preobremenitvijo, da opozori ljudi.
Priljubljena oznake: dvojno prepognjeno sredinsko odpiranje fuji tovorno dvigalo, Kitajska dvojno prepognjeno sredinsko odpiranje fuji tovorno dvigalo proizvajalci, dobavitelji, tovarna


